loader
loader
loader
loader
loader
close
Առկա է verify

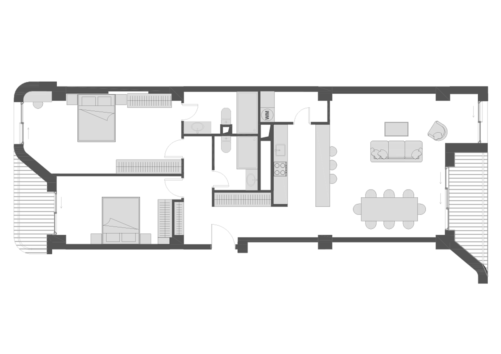
LOTUS

Շինավարտ Հուլիս, 2027
number
Բնակարանի համարը
27
floor
Հարկ
-1 / 7
door
Սենյակների քանակ
3
square
Մակերեսը
120.5 քմ
location
Երեվան, Նորք-Մարաշ
Բնակարանի հատակագիծ
schema

27

3-սենյականոց բնակարան

120.5 քմ

-1 / 7 հարկ

Նախամուտք

քմ
left line
Առկա է verify

LOTUS

Շինավարտ Հուլիս, 2027
number
Բնակարանի համարը
27
floor
Հարկ
-1 / 7
door_media
Սենյակների քանակ
3
square
Մակերեսը
120.5 քմ
location
Երեվան, Նորք-Մարաշ

Բնակարանի հատակագիծ

27

3-սենյականոց բնակարան

120.5 քմ

-1 / 7 հարկ

Նախամուտք

քմ
schema
left-line